Trilocale in vendita

Bari, Via Buccari - Carrassi Chiesa Russa
€ 115.000
3 locali 3 locali
80 Mq 80 Mq
1 bagno 1 bagno

Trilocale in vendita

Bari, Via Buccari - Carrassi Chiesa Russa

Descrizione annuncio

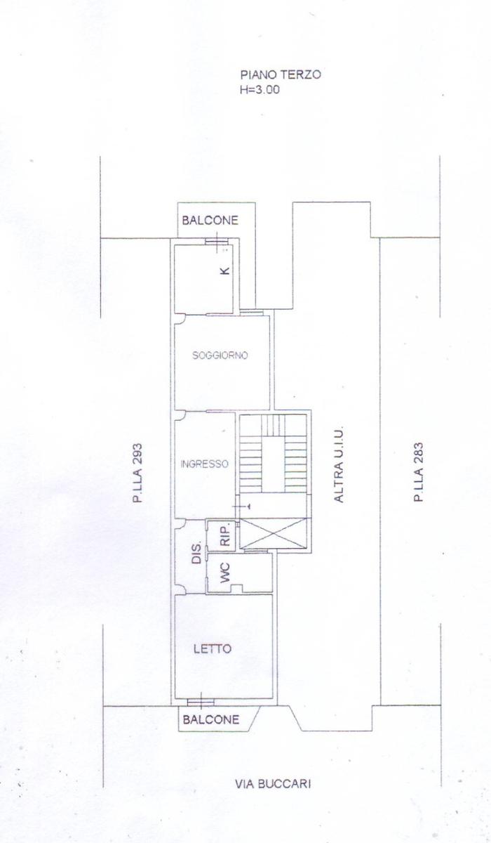
Nel cuore del quartiere Carrassi – Chiesa Russa, una delle zone più richieste e servite di Bari, proponiamo in vendita un luminoso appartamento di 85 mq, ideale sia come abitazione principale sia come investimento sicuro e redditizio.

L’immobile si distingue per la doppia esposizione, che garantisce ambienti ariosi e naturalmente illuminati durante tutto l’arco della giornata.

L’ingresso si apre su un accogliente soggiorno a vista, spazio perfetto per vivere momenti di relax o convivialità.

La zona notte è ben distribuita e comprende due camere da letto:

una con accesso diretto al secondo balcone,

l’altra luminosa grazie alla presenza di una comoda finestra.

La cucina abitabile, anch’essa con balcone, rappresenta l’ambiente ideale per chi ama cucinare in uno spazio arioso e funzionale. Il bagno finestrato assicura ottima ventilazione e comfort quotidiano.

Completa la proprietà un pratico ripostiglio, elemento sempre più raro e prezioso per una gestione ordinata degli spazi.

Perché acquistarlo?

Perfetto come prima casa, grazie alla distribuzione funzionale e alla luminosità degli ambienti.

Ottimo investimento, attualmente locato con contratto in scadenza a settembre 2026, garantendo una rendita immediata e programmabile.

Posizione strategica, in un quartiere ricco di servizi, scuole, attività commerciali e ben collegato al centro città.

Una soluzione versatile, pronta a soddisfare le esigenze di chi cerca una casa accogliente o un investimento solido nel tempo.

Contattaci per maggiori informazioni o per fissare una visita.

SCADENZA CONTRATTO FINE SETTEMBRE 2026 GIA' CON DISDETTA INVIATA.

Mostra tutto

Nelle vicinanze

Trasporto pubblico Trasporto pubblico
Bari Centro
Bari Centro
710 m
stazione di Bari Centrale
stazione di Bari Centrale
750 m
Trasporto pubblico
190 m
SudEST - Miccolis
SudEST - Miccolis
320 m
Ferry Terminal - Porto di Bari
2,5 Km
Ricariche auto elettriche Ricariche auto elettriche
Eneldrive Punto Enel
790 m
Eneldrive Stazione Bari Centrale
850 m
BARI Parcheggio Hotel Mercure Villa Romanazzi | ENELX
890 m
Campus Universitario Politecnico Bari | ENELX FAST
970 m
Eneldrive Politecnico Di Bari
1,1 Km
Scuole Scuole
Scuole
230 m
kronos - recupero anni
260 m
Liceo classico Socrate
370 m
Istituto Turistico Nicola Tridente
390 m
Scuola Media Laterza
470 m
Farmacia Farmacia
Fantozzi
180 m
Croce bianca
210 m
Mancini
280 m
Bellisario-Dioguardi
340 m
Macario
360 m
Ospedali Ospedali
Clinica Santa Maria
690 m
Policlinico di Bari
890 m
First Aid - university
1,0 Km
Istituto oncologico "Giovanni Paolo II"
1,1 Km
Anthea
1,4 Km
Supermercati Supermercati
Supermercato Coop
420 m
Sigma superstore
460 m
Supermercati
460 m
CONAD City
500 m
NaturaSi
510 m
Negozi Negozi
Iusco Abbigliamento
250 m
Negozi
320 m
Panificio S. Pasquale
570 m
Panificio Belvedere
630 m
L'altra metà del cielo
680 m
Bar Bar
Marrakech
230 m
Bar
300 m
Cabaret Voltaire
320 m
Edonè Caffè
380 m
Katharos Café
450 m
Ristoranti Ristoranti
l'Albero Che
80 m
Braceria Signorile
210 m
Il Chiodo Fisso
220 m
DaiKi Japanese Restaurant
360 m
Red Sky Wok
380 m
Mostra tutto

Caratteristiche

Rif.:
61177724
Piano:
3 di 4
Balconi:
2
Camere da letto:
2
Arredamento:
Assente
Condizionamento:
Assente
Mostra tutto
Prezzo Prezzo
€ 115.000
Rata mutuo Rata mutuo
€ 546 / mese
Spese annue Spese annue
€ 480
Proponi il tuo prezzoProponi il tuo prezzo

Classe Energetica

G
G
G
G
G
G
G
G
G
EP invernale del fabbricato:
EP estiva del fabbricato:
Anno di costruzione:
1966
Riscaldamento:
Assente

Ti interessa visionare l'immobile?

Fissa un appuntamento  Fissa un appuntamento

Richiedi informazioni

Clicca su Leggi per aprire l'informativa
* Questi campi sono obbligatori

Calcola il tuo mutuo

Semplice e senza impegno
Anticipo

( % )
Mutuo

( % )

pochi semplici passi

inserisci i tuoi dati
Questionario completato
Grazie per aver richiesto un appuntamento senza impegno con un nostro Consulente del Credito e Assicurativo.

Hai inserito correttamente tutti i dati necessari e a breve riceverai una e-mail con un link da convalidare per inviare i tuoi dati.
Affiliato
Studio Benedetto Croce Sas
Corso Benedetto Croce, 113 70100 Bari (BA)

Il nostro staff


  • Mariachiara Langianese
    Coordinatrice

  • Giuseppe Diacono
    Affiliato

  • Alessandro Abbaticola
    Collaboratore

  • Francesco Bruno
    Collaboratore

  • Maria Clara Morgese
    Collaboratrice

  • Giancarmine Sisto
    Collaboratore
Corso Benedetto Croce, 113 70100 Bari (BA)
Zona: Bari - Benedetto Croce - Carrassi
Mostra su mappa
Orari: Orario ufficio: lun.-ven. 9:00-13:00/16:00-20:30 sab. 9:00-13:00
Affiliato
Studio Benedetto Croce Sas
Corso Benedetto Croce, 113 70100 Bari (BA)

2026 Tecnocasa Franchising S.p.A. - P. IVA 08365160152 - Via Monte Bianco 60/A 20089 Rozzano (MI). Ogni agenzia ha un proprio titolare ed è autonoma. Privacy policy | Policy utilizzo | Cookie policy