Trilocale in vendita

Bari, Via san lorenzo - Carrassi Chiesa Russa
€ 240.000
3 locali 3 locali
80 Mq 80 Mq
1 bagno 1 bagno

Trilocale in vendita

Bari, Via san lorenzo - Carrassi Chiesa Russa

Descrizione annuncio

Nel cuore pulsante del quartiere Carrassi, in Via San Lorenzo, proponiamo una nuova soluzione abitativa di nuova realizzazione, frutto di un’attenta ristrutturazione in chiave moderna ed efficiente, pensata per chi desidera vivere il centro con comfort e stile.

Situata in stabile signorile dotato di ascensore, l’abitazione nasce da un accurato frazionamento e sarà consegnata completamente rifinita, con materiali di qualità e particolare attenzione al risparmio energetico in ottica casa Green.

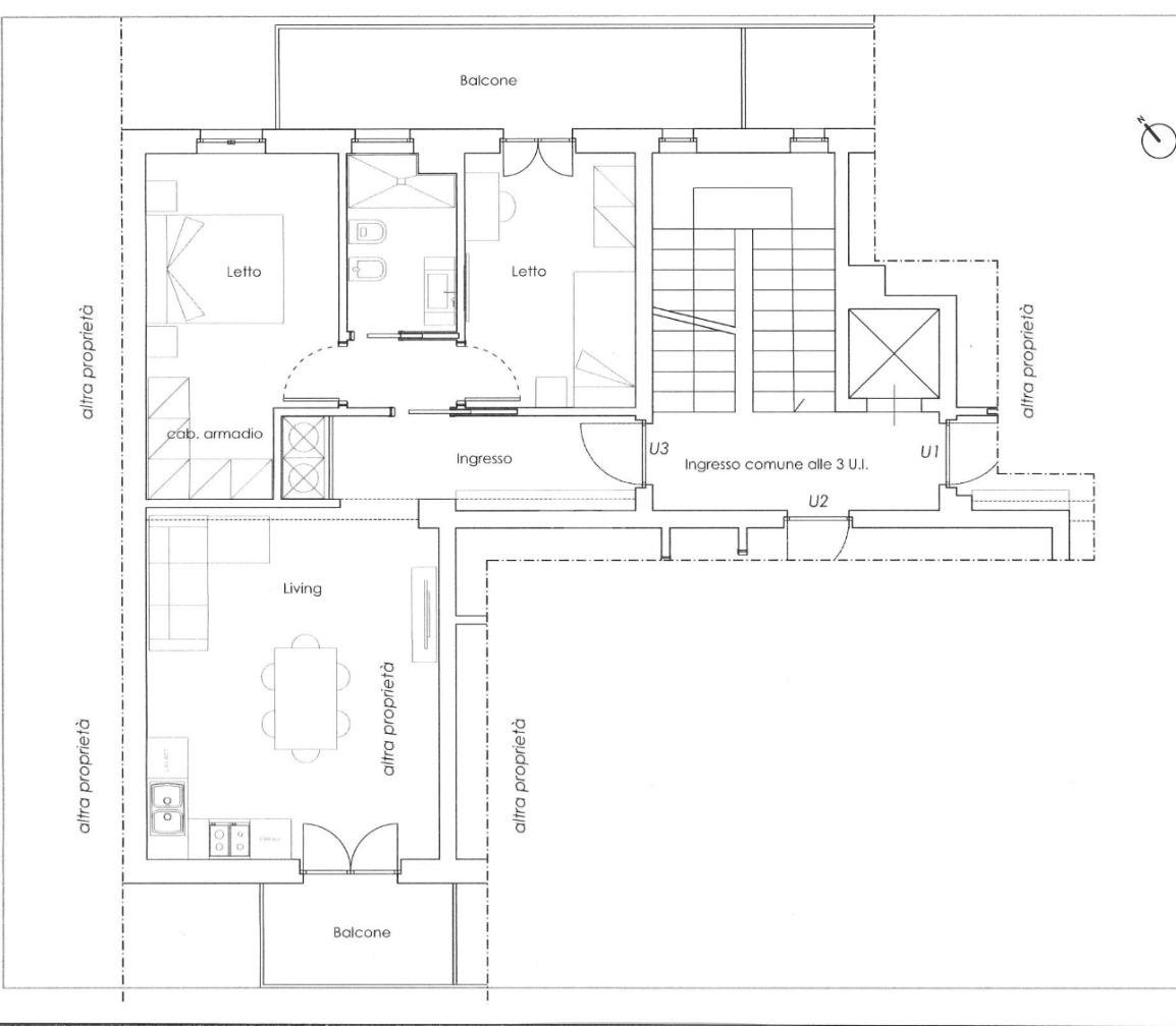
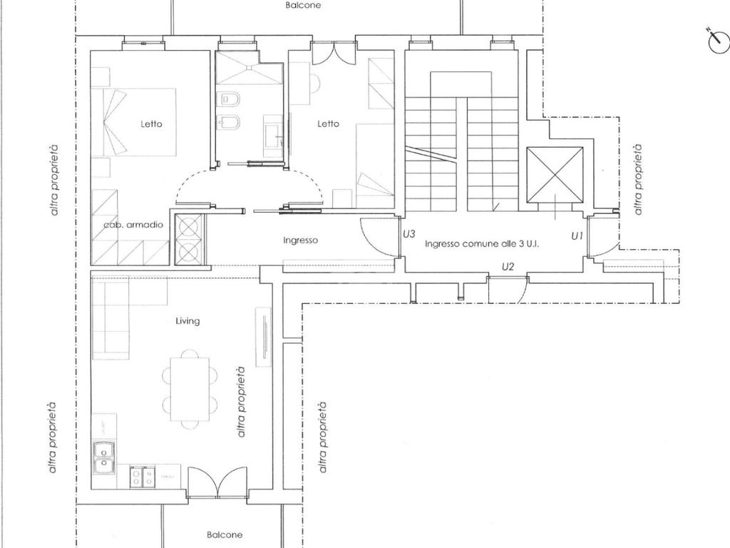
L’immobile si sviluppa in modo funzionale e luminoso:

Ingresso con soggiorno a vista e angolo cottura, con affaccio tramite balcone su Via San Lorenzo

Camera da letto con balcone interno, riservata e silenziosa

Seconda camera con finestra interna, dotata di comoda cabina armadio

Bagno con finestra interna, rifinito con materiali moderni

La ristrutturazione prevede impianti di nuova generazione, infissi ad alta efficienza energetica e soluzioni volte al contenimento dei consumi, garantendo comfort abitativo e sostenibilità.

Una proposta ideale per chi cerca una casa nuova, pronta da vivere, nel pieno centro di Carrassi a Bari, in posizione strategica e ben servita.

Consegna prevista: Maggio 2026.

Quanto vale la tua casa?


Se stai pensando di vendere, conoscere il giusto valore di mercato è il primo passo per una vendita serena e vantaggiosa.

Contattaci per una valutazione gratuita e senza impegno:

Telefono: 080.552.07.99
WhatsApp: 380.586.72.3

Ci trovi in Corso Benedetto Croce, 113 – Bari

Affidati alla nostra esperienza per una consulenza personalizzata e professionale!

Mostra tutto

Nelle vicinanze

Trasporto pubblico Trasporto pubblico
Bari Centro
Bari Centro
490 m
stazione di Bari Centrale
stazione di Bari Centrale
530 m
SudEST
SudEST
150 m
SudEST - Miccolis
SudEST - Miccolis
190 m
Ferry Terminal - Porto di Bari
2,2 Km
Ricariche auto elettriche Ricariche auto elettriche
Eneldrive Punto Enel
520 m
Eneldrive Stazione Bari Centrale
620 m
BARI Parcheggio Hotel Mercure Villa Romanazzi | ENELX
940 m
Campus Universitario Politecnico Bari | ENELX FAST
950 m
Eneldrive Politecnico Di Bari
960 m
Scuole Scuole
kronos - recupero anni
70 m
Scuole
220 m
Scuola Media Laterza
330 m
Scuola elementare De Amicis
380 m
Accademia di Belle Arti di Bari
440 m
Farmacia Farmacia
Mancini
40 m
Farmacia del Viale
170 m
Bellisario-Dioguardi
250 m
Farmacia Bellisario
290 m
Carella Dottor Clelia
360 m
Ospedali Ospedali
First Aid - university
840 m
Clinica Santa Maria
920 m
Policlinico di Bari
1,1 Km
Istituto oncologico "Giovanni Paolo II"
1,4 Km
Anthea
1,6 Km
Supermercati Supermercati
CONAD City
230 m
Supermercato Coop
310 m
EsseGrande
440 m
NaturaSi
440 m
Supermercati Dok
460 m
Negozi Negozi
Negozi
70 m
Panificio Belvedere
360 m
Panificio S. Pasquale
370 m
Rosso Cuore
450 m
MiniFashion
450 m
Bar Bar
Marrakech
100 m
Cabaret Voltaire
140 m
Bar
300 m
Katharos Café
330 m
Edonè Caffè
430 m
Ristoranti Ristoranti
Il Chiodo Fisso
60 m
Sushi Lin
150 m
Sole Rosso
260 m
Ramen a mano - Ristorante millegusti
270 m
Braceria Signorile
270 m
Mostra tutto

Caratteristiche

Rif.:
61165368
Piano:
3 di 6 con ascensore
Balconi:
2
Camere da letto:
2
Arredamento:
Assente
Condizionamento:
Autonomo
Mostra tutto
Prezzo Prezzo
€ 240.000
Rata mutuo Rata mutuo
€ 1.140 / mese
Spese annue Spese annue
€ 270
Proponi il tuo prezzoProponi il tuo prezzo

Classe Energetica

B
B
B
B
B
B
B
B
B
EP globale non rinnovabile:
8.71 kW h/m² anno
EP globale rinnovabile:
81.72 kW h/m² anno
EP invernale del fabbricato:
EP estiva del fabbricato:
Anno di costruzione:
1966
Riscaldamento:
Autonomo
Tipo impianto:
Ad aria
Tipo alimentazione:
Aria

Ti interessa visionare l'immobile?

Fissa un appuntamento  Fissa un appuntamento

Richiedi informazioni

Clicca su Leggi per aprire l'informativa
* Questi campi sono obbligatori

Calcola il tuo mutuo

Semplice e senza impegno
Anticipo

( % )
Mutuo

( % )

pochi semplici passi

inserisci i tuoi dati
Questionario completato
Grazie per aver richiesto un appuntamento senza impegno con un nostro Consulente del Credito e Assicurativo.

Hai inserito correttamente tutti i dati necessari e a breve riceverai una e-mail con un link da convalidare per inviare i tuoi dati.
Affiliato
Studio Benedetto Croce Sas
Corso Benedetto Croce, 113 70100 Bari (BA)

Il nostro staff


  • Mariachiara Langianese
    Coordinatrice

  • Giuseppe Diacono
    Affiliato

  • Alessandro Abbaticola
    Collaboratore

  • Francesco Bruno
    Collaboratore

  • Maria Clara Morgese
    Collaboratrice

  • Giancarmine Sisto
    Collaboratore
Corso Benedetto Croce, 113 70100 Bari (BA)
Zona: Bari - Benedetto Croce - Carrassi
Mostra su mappa
Orari: Orario ufficio: lun.-ven. 9:00-13:00/16:00-20:30 sab. 9:00-13:00
Affiliato
Studio Benedetto Croce Sas
Corso Benedetto Croce, 113 70100 Bari (BA)

2026 Tecnocasa Franchising S.p.A. - P. IVA 08365160152 - Via Monte Bianco 60/A 20089 Rozzano (MI). Ogni agenzia ha un proprio titolare ed è autonoma. Privacy policy | Policy utilizzo | Cookie policy