Quadrilocale in vendita

Bari, Corso alcide de gasperi - Carrassi Chiesa Russa
€ 250.000
4 locali 4 locali
118 Mq 118 Mq

Quadrilocale in vendita

Bari, Corso alcide de gasperi - Carrassi Chiesa Russa

Descrizione annuncio

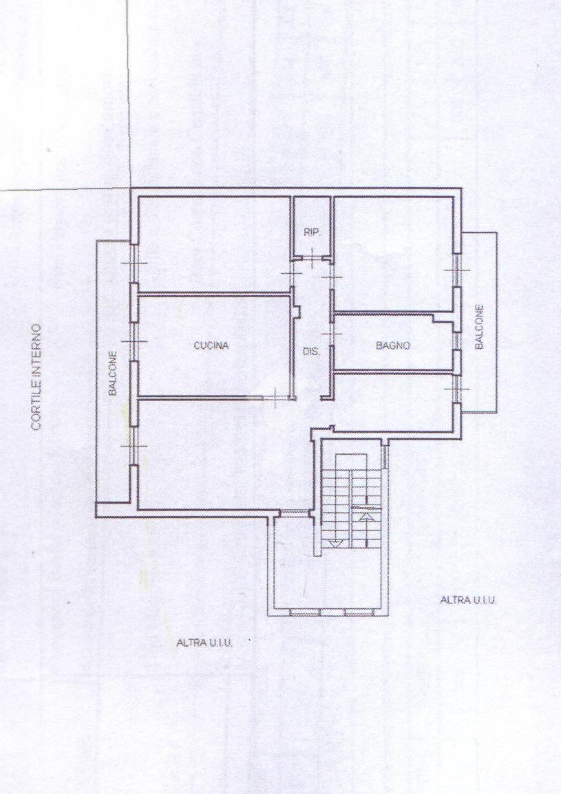
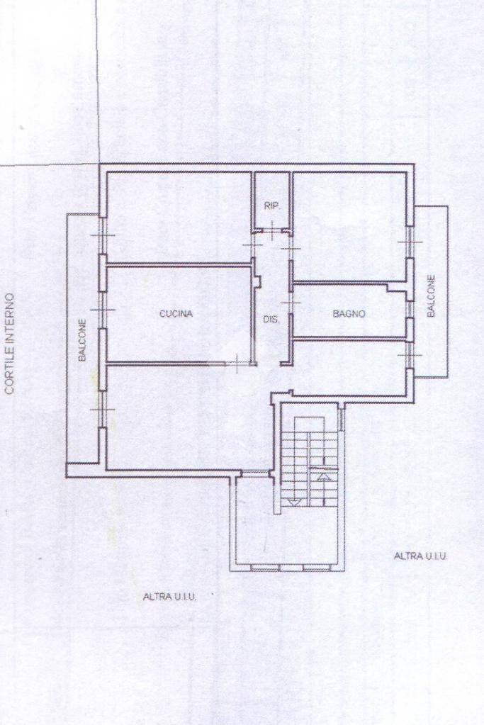
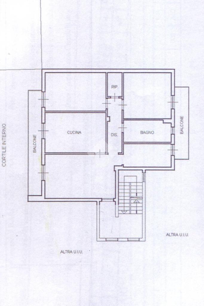
Vicino Parco 2 Giugno – Elegante appartamento moderno di 118 mq

A pochi passi dal Parco 2 Giugno, in una delle zone più esclusive e richieste di Bari, proponiamo un appartamento signorile di 118 mq, caratterizzato da finiture di alto livello, design moderno e ambienti pensati per il massimo comfort abitativo.

L’ingresso introduce in un ampio soggiorno a vista, raffinato e luminosissimo, con accesso a due balconi che amplificano la sensazione di spazio e garantiscono piacevoli affacci esterni, ideali per momenti di relax.

La cucina abitabile, moderna e funzionale, è perfetta per chi ama vivere la casa e condividere momenti conviviali in un ambiente elegante.

La zona notte ospita tre camere da letto ampie e ben distribuite, progettate per offrire privacy, comfort e versatilità. Il bagno finestrato, rifinito con materiali di qualità, unisce estetica e funzionalità. Un comodo ripostiglio completa l’organizzazione interna.

L’appartamento è dotato di riscaldamento e condizionamento autonomi, assicurando un clima ideale in ogni stagione.

Una soluzione abitativa moderna, curata nei dettagli e pronta da vivere, ideale per chi desidera un immobile di prestigio in un contesto residenziale elegante, servito e a ridosso del verde.

Mostra tutto

Nelle vicinanze

Trasporto pubblico Trasporto pubblico
Bari Centro
Bari Centro
1,6 Km
stazione di Bari Centrale
stazione di Bari Centrale
1,6 Km
Trasporto pubblico
380 m
Via Fanelli
Via Fanelli
640 m
Bari Policlinico
Bari Policlinico
1,6 Km
Ricariche auto elettriche Ricariche auto elettriche
Eneldrive Petroni
820 m
Campus Universitario Politecnico Bari | ENELX FAST
960 m
Eneldrive Politecnico Di Bari
1,3 Km
Enedrive Matarrese
1,5 Km
BARI Parcheggio Hotel Mercure Villa Romanazzi | ENELX
1,6 Km
Scuole Scuole
Liceo classico Socrate
500 m
Scuole
520 m
Istituto Turistico Nicola Tridente
530 m
Facoltá di Biotecnologie
670 m
Biotecnologie
670 m
Farmacia Farmacia
Crisigiovanni
270 m
Brescia
330 m
Stanzione
420 m
Dell'orco
490 m
De Cristo
490 m
Ospedali Ospedali
Clinica Santa Maria
970 m
Istituto oncologico "Giovanni Paolo II"
1,2 Km
Anthea
1,3 Km
Mater Dei
1,3 Km
Policlinico di Bari
1,4 Km
Supermercati Supermercati
Alter Discount
340 m
Supermercaro Famila
490 m
Supermercati
550 m
Supermercato Punto SMA
580 m
Simply market
600 m
Negozi Negozi
Panificio Michele
400 m
Negozi
440 m
Panificio
520 m
Felice
650 m
Panificio Gentile
680 m
Bar Bar
Chioschetto del parco
250 m
Bar
350 m
U Gelatir
380 m
Summit Club
710 m
Edonè Caffè
740 m
Ristoranti Ristoranti
Ristoranti
390 m
La 'Mbriana
460 m
Pizzeria Di Cosimo
480 m
Al Gusto Antico
510 m
Ristorante Cinese
540 m
Mostra tutto

Caratteristiche

Rif.:
61163748
Piano:
1
Condizionamento:
Autonomo
Ascensore:
No
Riscaldamento:
Autonomo
Libero:
No
Mostra tutto
Prezzo Prezzo
€ 250.000
Rata mutuo Rata mutuo
€ 1.168 / mese
Spese annue Spese annue
€ 520
Proponi il tuo prezzoProponi il tuo prezzo

Classe Energetica

D
D
D
D
D
D
D
D
D
EP globale non rinnovabile:
178.97 kW h/m² anno
EP invernale del fabbricato:
EP estiva del fabbricato:
Anno di costruzione:
1966
Riscaldamento:
Autonomo
Tipo impianto:
A radiatori
Tipo alimentazione:
Metano

Ti interessa visionare l'immobile?

Fissa un appuntamento  Fissa un appuntamento

Richiedi informazioni

Clicca su Leggi per aprire l'informativa
* Questi campi sono obbligatori

Calcola il tuo mutuo

Semplice e senza impegno
Anticipo

( % )
Mutuo

( % )

pochi semplici passi

inserisci i tuoi dati
Questionario completato
Grazie per aver richiesto un appuntamento senza impegno con un nostro Consulente del Credito e Assicurativo.

Hai inserito correttamente tutti i dati necessari e a breve riceverai una e-mail con un link da convalidare per inviare i tuoi dati.
Affiliato
Studio Benedetto Croce Sas
Corso Benedetto Croce, 113 70100 Bari (BA)

Il nostro staff


  • Mariachiara Langianese
    Coordinatrice

  • Giuseppe Diacono
    Affiliato

  • Alessandro Abbaticola
    Collaboratore

  • Francesco Bruno
    Collaboratore

  • Maria Clara Morgese
    Collaboratrice
Corso Benedetto Croce, 113 70100 Bari (BA)
Zona: Bari - Benedetto Croce - Carrassi
Mostra su mappa
Orari: Orario ufficio: lun.-ven. 9:00-13:00/16:00-20:30 sab. 9:00-13:00
Affiliato
Studio Benedetto Croce Sas
Corso Benedetto Croce, 113 70100 Bari (BA)

2026 Tecnocasa Franchising S.p.A. - P. IVA 08365160152 - Via Monte Bianco 60/A 20089 Rozzano (MI). Ogni agenzia ha un proprio titolare ed è autonoma. Privacy policy | Policy utilizzo | Cookie policy