5 locali in vendita

Bari, Via san lorenzo - Carrassi Chiesa Russa
€ 330.000
Prezzo aggiornato
5 locali 5 locali
140 Mq 140 Mq
2 bagni 2 bagni

5 locali in vendita

Bari, Via san lorenzo - Carrassi Chiesa Russa

Descrizione annuncio

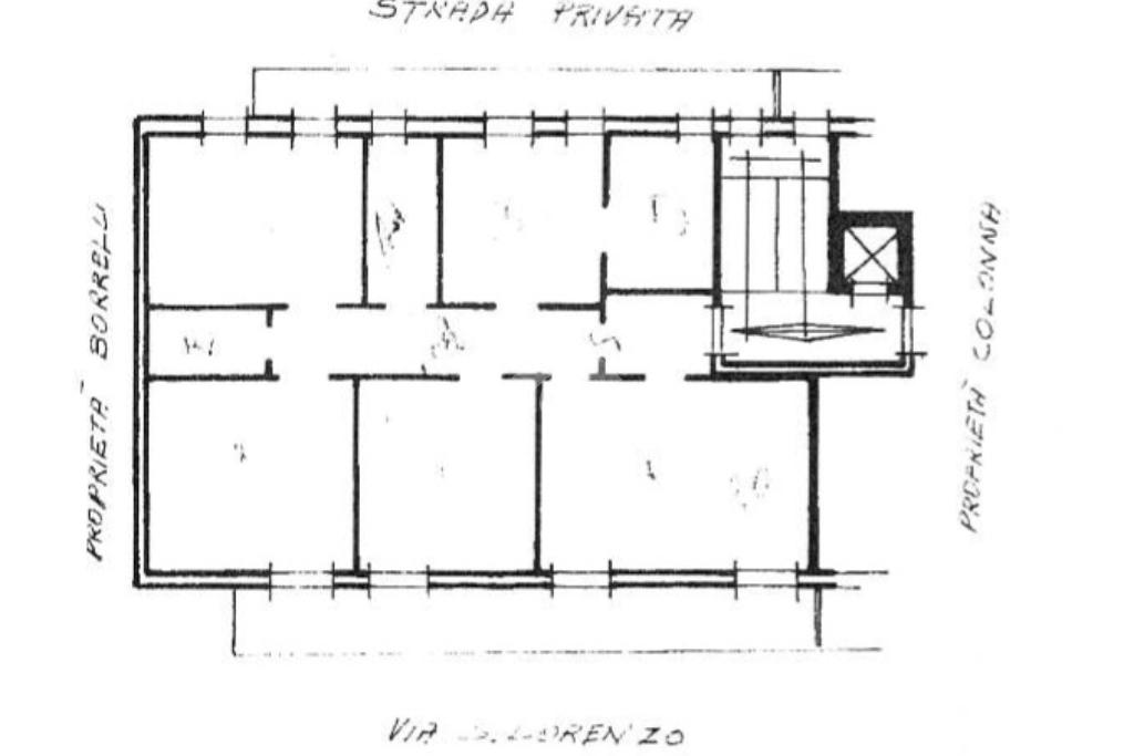
Ampio appartamento in vendita nel cuore di Carrassi – zona Chiesa Russa, Bari

Nel cuore del quartiere Carrassi, a pochi passi dalla Chiesa Russa, proponiamo in vendita un luminoso appartamento di 140 mq situato in uno stabile signorile con ascensore.

L’immobile, libero e da ristrutturare, offre spazi ampi e ben distribuiti, perfetti per chi desidera personalizzare la propria abitazione secondo il proprio stile.

La zona giorno si apre su un elegante salone doppio, ideale per momenti di relax o per accogliere ospiti, mentre la cucina abitabile rappresenta il cuore della casa, pensata per chi ama vivere e condividere il piacere della convivialità.

La zona notte comprende tre comode camere da letto e due bagni, offrendo comfort e funzionalità per tutta la famiglia.

La doppia esposizione e i due balconi garantiscono un’eccellente luminosità in ogni ambiente, oltre a uno spazio esterno privato dove godersi momenti all’aria aperta.

Completano la proprietà un comodo ripostiglio, la praticità dell’ascensore condominiale e la possibilità di parcheggio in area condominiale, un valore aggiunto di grande comodità in una zona così centrale.

Costruito prima del 1966, questo appartamento rappresenta una vera opportunità per chi cerca ampi spazi da valorizzare in una delle zone più richieste e ben servite di Bari, a pochi minuti dal centro e da tutti i principali servizi.

Mostra tutto

Nelle vicinanze

Trasporto pubblico Trasporto pubblico
Bari Centro
Bari Centro
470 m
stazione di Bari Centrale
stazione di Bari Centrale
510 m
SudEST
SudEST
190 m
SudEST - Miccolis
SudEST - Miccolis
230 m
Ferry Terminal - Porto di Bari
2,2 Km
Ricariche auto elettriche Ricariche auto elettriche
Eneldrive Punto Enel
530 m
Eneldrive Stazione Bari Centrale
600 m
BARI Parcheggio Hotel Mercure Villa Romanazzi | ENELX
900 m
Campus Universitario Politecnico Bari | ENELX FAST
990 m
Eneldrive Politecnico Di Bari
1,0 Km
Scuole Scuole
kronos - recupero anni
30 m
Scuole
250 m
Scuola Media Laterza
370 m
Scuola elementare De Amicis
420 m
Accademia di Belle Arti di Bari
480 m
Farmacia Farmacia
Mancini
80 m
Farmacia del Viale
190 m
Bellisario-Dioguardi
290 m
Farmacia Bellisario
310 m
Fantozzi
360 m
Ospedali Ospedali
First Aid - university
810 m
Clinica Santa Maria
890 m
Policlinico di Bari
1,0 Km
Istituto oncologico "Giovanni Paolo II"
1,3 Km
Anthea
1,6 Km
Supermercati Supermercati
CONAD City
240 m
Supermercato Coop
350 m
Sigma superstore
420 m
EsseGrande
420 m
Supermercati Dok
440 m
Negozi Negozi
Negozi
90 m
Panificio Belvedere
360 m
Panificio S. Pasquale
410 m
Rosso Cuore
430 m
MiniFashion
440 m
Bar Bar
Marrakech
60 m
Cabaret Voltaire
180 m
Katharos Café
290 m
Bar
340 m
Edonè Caffè
460 m
Ristoranti Ristoranti
Il Chiodo Fisso
60 m
Sushi Lin
180 m
Braceria Signorile
230 m
Paoletti
240 m
Sole Rosso
260 m
Mostra tutto

Caratteristiche

Rif.:
61121923
Piano:
4 di 8 con ascensore
Balconi:
2
Camere da letto:
3
Arredamento:
Assente
Condizionamento:
Assente
Mostra tutto
Prezzo Prezzo
€ 330.000
Rata mutuo Rata mutuo
€ 1.521 / mese
Spese annue Spese annue
€ 720
Proponi il tuo prezzoProponi il tuo prezzo

Classe Energetica

G
G
G
G
G
G
G
G
G
EP globale non rinnovabile:
8.74 kW h/m² anno
EP globale rinnovabile:
81.76 kW h/m² anno
EP invernale del fabbricato:
EP estiva del fabbricato:
Anno di costruzione:
1966
Riscaldamento:
Autonomo
Tipo impianto:
A radiatori
Tipo alimentazione:
Metano

Prezzo ridotto di €1 (6%%)

Ti interessa visionare l'immobile?

Fissa un appuntamento  Fissa un appuntamento

Richiedi informazioni

* Questi campi sono obbligatori

Calcola il tuo mutuo

Semplice e senza impegno
Anticipo

( % )
Mutuo

( % )

pochi semplici passi

inserisci i tuoi dati
Questionario completato
Grazie per aver richiesto un appuntamento senza impegno con un nostro Consulente del Credito e Assicurativo.

Hai inserito correttamente tutti i dati necessari e a breve riceverai una e-mail con un link da convalidare per inviare i tuoi dati.
Affiliato
Studio Benedetto Croce Sas
Corso Benedetto Croce, 113 70100 Bari (BA)

Il nostro staff


  • Mariachiara Langianese
    Coordinatrice

  • Giuseppe Diacono
    Affiliato

  • Alessandro Abbaticola
    Collaboratore

  • Francesco Bruno
    Collaboratore

  • Maria Clara Morgese
    Collaboratrice
Corso Benedetto Croce, 113 70100 Bari (BA)
Zona: Bari - Benedetto Croce - Carrassi
Mostra su mappa
Orari: Orario ufficio: lun.-ven. 9:00-13:00/16:00-20:30 sab. 9:00-13:00
Affiliato
Studio Benedetto Croce Sas
Corso Benedetto Croce, 113 70100 Bari (BA)

2025 Tecnocasa Franchising S.p.A. - P. IVA 08365160152 - Via Monte Bianco 60/A 20089 Rozzano (MI). Ogni agenzia ha un proprio titolare ed è autonoma. Privacy policy | Policy utilizzo | Cookie policy